Bevis Marks Synagogue
Bevis Marks Synagogue is the most culturally and religiously significant Jewish sitein the UK, and sits tucked away on the edge of the old city since the Sephardi community were invited back to the UK by Oliver Cromwell following resettlement in 1656. The site represents the Jewish Sephardi community but is also important to the wider audience of Judaism in the UK.
The synagogue is Grade I listed, built in 1701, and is flanked by two late 19th Century buildings. The group sit in a courtyard now overshadowed by post-war commercial development, and are all that remain of a once much larger Jewish community with schools, orphanages, shops and businesses. Bevis Marks has a special significance as being the oldest synagogue in continuous use in Europe.
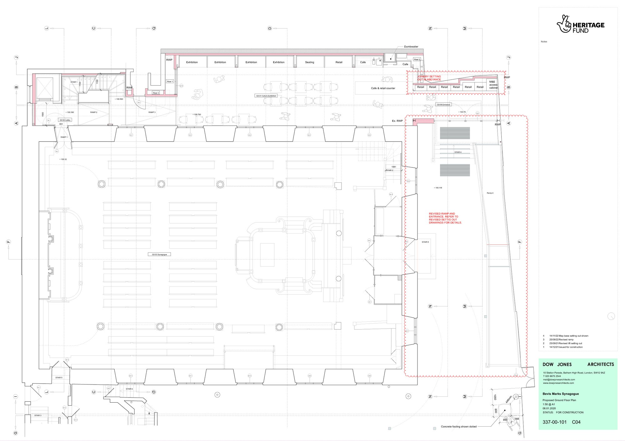
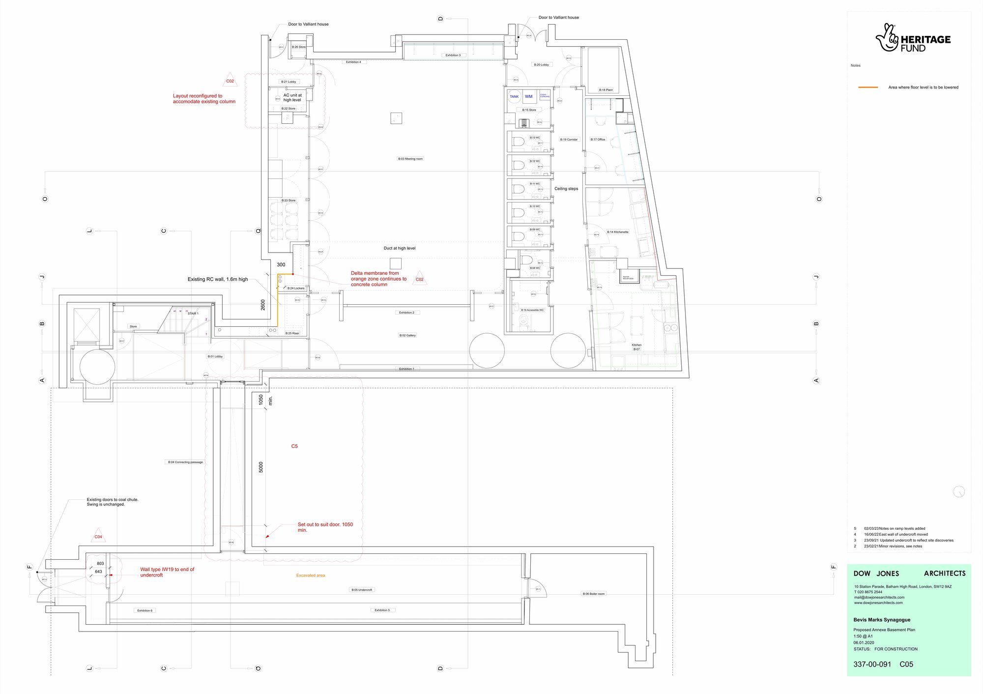
Our project has restored the synagogue, and redevelops a late 20th Centuryextension alongside it as a space for visitors and for the community. A ramped entrance in the courtyard and a new lift provide level access to all parts of the synagogue and community spaces for the first time. The ground floor of the new building is designed as a shop, café and exhibition space, with timber baffles to the rooflight providing a calm sense of arrival within the overlooked site. A folded steel stair connects the ground floor with the synagogue gallery above and with the extensive basement which reaches under the neighbouring building, opening into a space for learning and events. The brick undercroft of the synagogue has been opened up as a special gallery to display treasures from the community archive, bringing these items to light for the first time. Exhibition design has been woven through the spaces so that archive material is used to structure spaces and tell the story of the Sephardi community and refugee life.
Our objective has been to create a series of spaces within the confines of the site, structured around a narrative journey through the building. The presence of the synagogue, whether alongside or above, is always felt. Materials have been chosen to provide an understated clarity to the new spaces, with a Portuguese limestone floor used throughout, as well as oak joinery with a dark stain to match the synagogue joinery. The exterior face of the new building is clad with pigmented zinc shingles, and a small family of ticket huts in the courtyard complete the group.
The building is due to open in Summer 2025.
Structural Engineer:
Momentum
Conservation Architect:
Caroe Architecture
Services Engineer:
Arup
Exhibition Designers:
Skellon Studio
Conservation Architects:
Malcolm Fryer Architects
Project management:
Belvedere
Contractor:
Desert Oak
Business Planning:
DCA Consultants
Quantity Surveyor:
Focus












