Hawkswell Gardens
Refurbishment and extension of a 1959 house in North Oxford.
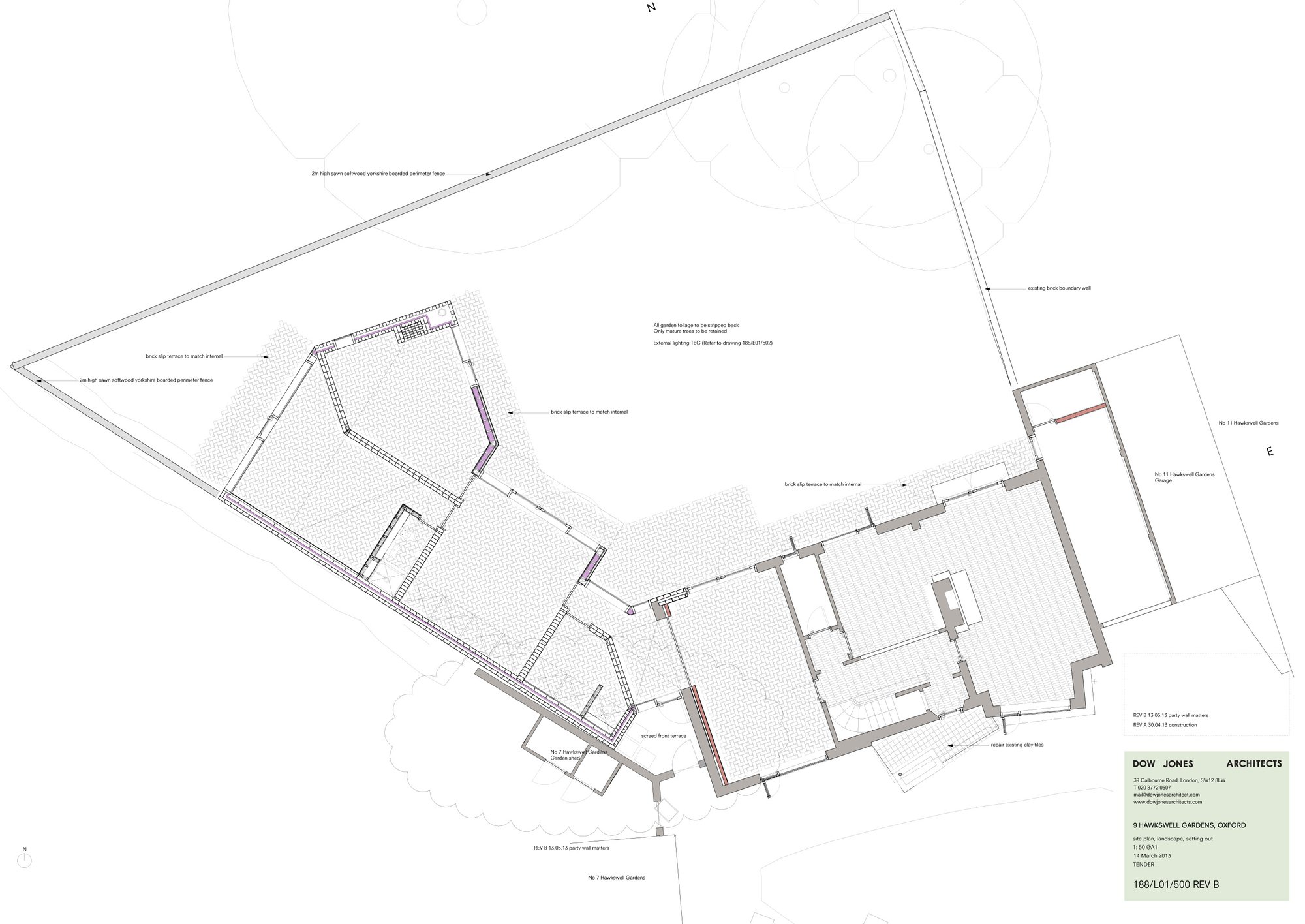
Hawkswell Gardens was built in 1959 and sits in a small cul-de-sac in Oxford’s Summertown. Our project refurbished the existing house and built a large single storey extension along the perimeter of the garden.
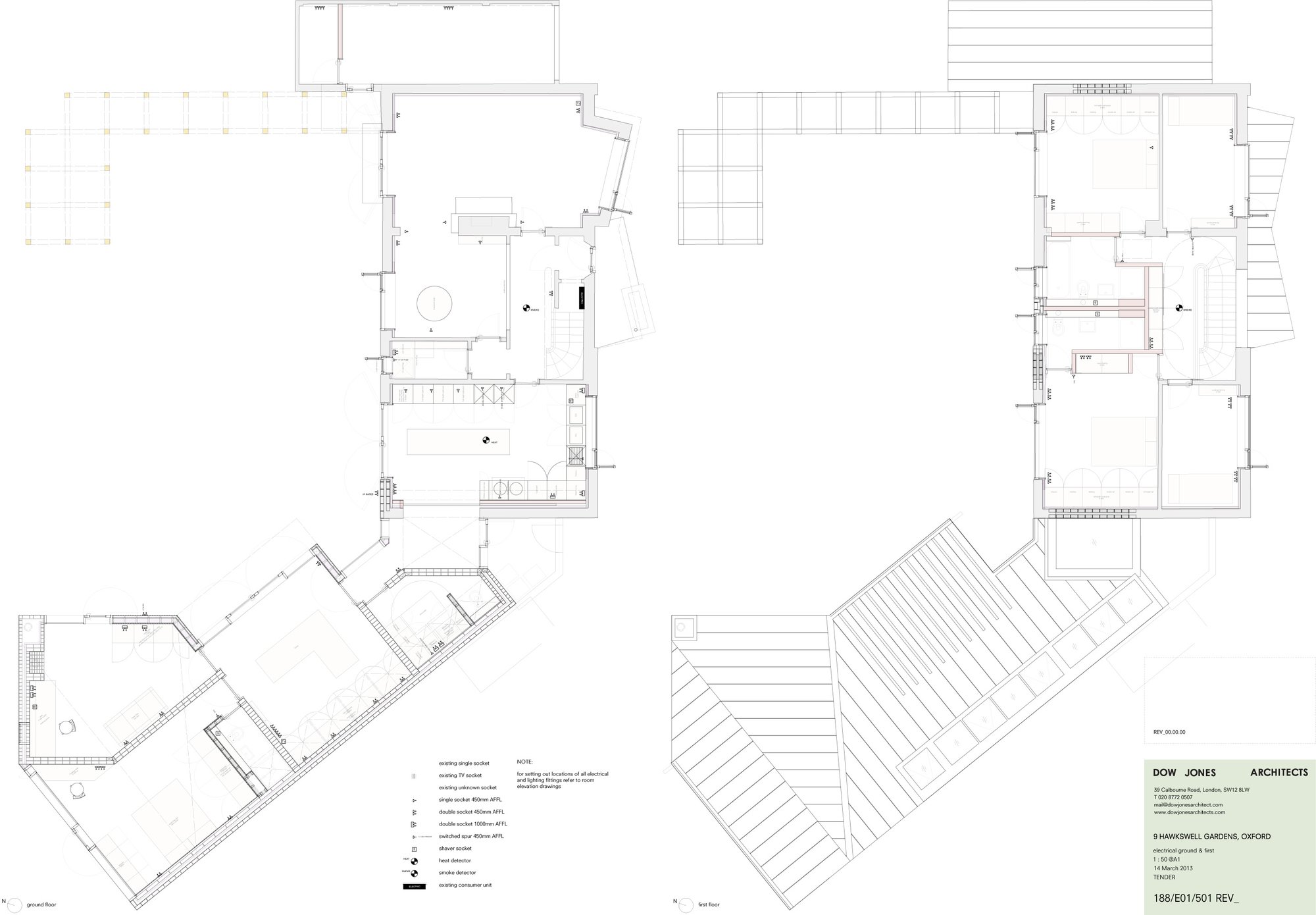
The original house has a teak stair with a steel balustrade, and a glazed timber screen to the hallway. We uncovered the teak parquet floor throughout the ground floor of the existing house. These elements were used as the inspiration for the extension. The new extension took the existing brick garden wall and wrapped it around the garden to enclose and define a sequence of spaces. This brick wall culminates in the study where it is raised to form a chimney.
The new construction uses fair faced brick – inside and out – and bespoke timber panelling, windows and doors. A long rooflight drops natural light down the garden wall and into the heart of the rooms. The complex roof form is clad with red zinc.
Structural Engineer:
Momentum
Contractor:
Bentson Building Contractors


















