Prospect House
A remodelled 1980s family house and new studio in Bath.
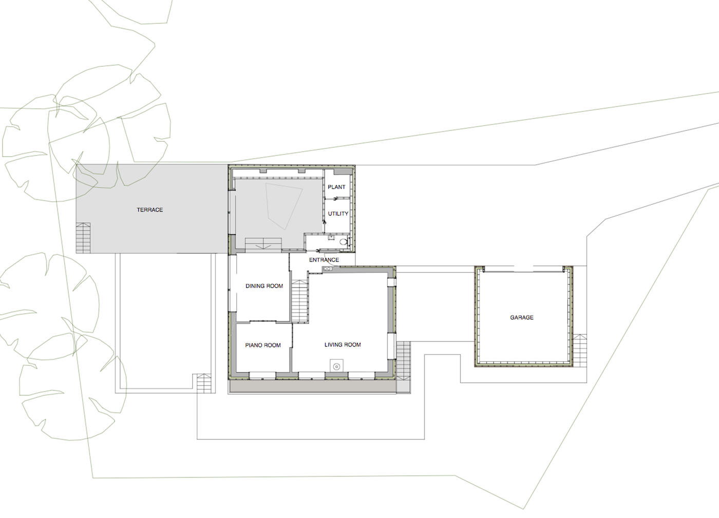
This project substantially remodelled an existing 1980s house on a prominent site in Bath. The original house (below) suffered from poor environmental performance and felt disconnected from its site, with circuitous access to the garden, and windows positioned so low that you couldn't see the spectacular view when standing.
We gutted the house, stripping it back to its structure and cutting new openings both internally and on the external walls. The interior was reorganised with clearer connections between spaces, and new doors, windows and rooflights created address the surrounding views and the passage of the sun. This new arrangement of openings establishes a coherent relationship with the garden and valley beyond.
The remodelled house, completed 2008, has been heavily insulated and wrapped entirely in chocolate brown zinc, and has the appearance of a crystal buried into the hillside. New terraces around the house allow thresholds between the house and garden, with a new studio and garage building alongside.
The bedrooms on the first floor all open into a withdrawing room, which provides a view across the green to the sea.
Structural Engineer:
Momentum
Services Engineer:
Buro Happold
Lighting Designer:
Mindseye
Contractor:
Emery
Quantity Surveyors:
Cyril Smith Ltd.
Concrete Installation Contractor:
Steyson Granolithic
Awards
- Highly Commended, Daily Telegraph Home Building and Renovating Award, 2012
- Winner, BD Refurbishment Architects of the Year, 2010
Publications
- Hugh Strange, ‘Wrap Artists’, in: Building Design(London, UK, Sept. 24, 2010)
- Dominic Bradbury, ‘It's As Good As New’, in: The Sunday Times(London, UK, Oct. 17, 2010)
- Jay Merrick, ‘California Dreaming’, in: The Independent(London, UK, Aug. 6, 2010)
- Philip Stevens, ‘Dow Jones Architects Remodels Prospect House’, in: Designboom(Milan, Italy, March 29, 2014)
- David Grandorge, ‘Prospect House’, in: Architecture Today(London, UK, Sept. 1, 2010)
- ‘Clad All Over’, in: Homebuilding And Renovating Magazine(London, UK, March 1, 2012)
- ‘Women In Practice’, in: Architects Journal(London, UK, Jan. 12, 2012)
- ‘Prospect House’, in: Divisare(Rome, Italy, March 27, 2013)





















