Kassiopi House
The restoration of an existing stone house and the construction of a new house for a family in Corfu
The site for the houses is a steeply-sloping olive grove in the north east of Corfu. The remains of the existing stone house sits as a shell on the site and is being restored to privde a series of large, simple rooms which overlook the house and the sea.
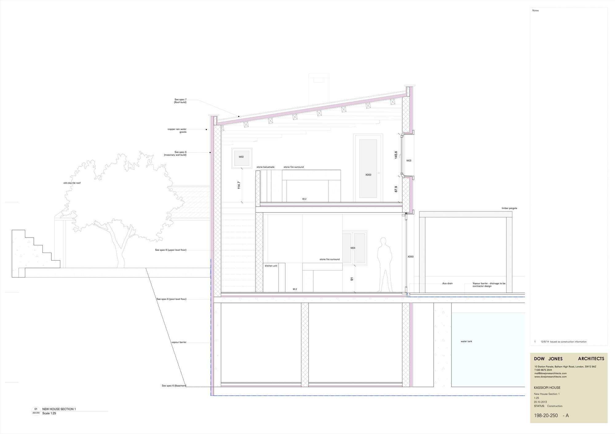
The new house sits below it, reached by a series of interconnecting spaces in the existing landscape. Terraces and steps overlook views and catch light at different times of day. The new house is made of stone excavated on the site and it extends this inhabited landscape indoors, with rooms oriented to open over different parts of the landscape, and opening out onto different levels.




![198 A20 100 OLD [Existing House Ground plan].jpg](https://dowjonesarchitects.lon1.digitaloceanspaces.com/media/images/198_A20_100_OLD_Existing_House_Ground_plan.width-1400.jpg)

![198 A20 110 OLD [Existing House 1st Floor Plan].jpg](https://dowjonesarchitects.lon1.digitaloceanspaces.com/media/images/198_A20_110_OLD_Existing_House_1st_Floor_Plan.width-1400.jpg)
![198 A20 220 OLD [Old House Section A].jpg](https://dowjonesarchitects.lon1.digitaloceanspaces.com/media/images/198_A20_220_OLD_Old_House_Section_A.width-1400.jpg)

![198 20 020 [Site Elevation].jpg](https://dowjonesarchitects.lon1.digitaloceanspaces.com/media/images/198_20_020_Site_Elevation.width-1400.jpg)
![198 A20 250 NEW [New House Section 1].jpg](https://dowjonesarchitects.lon1.digitaloceanspaces.com/media/images/198_A20_250_NEW_New_House_Section_1.width-1400.jpg)
![198 A20 270 NEW [New House Section A].jpg](https://dowjonesarchitects.lon1.digitaloceanspaces.com/media/images/198_A20_270_NEW_New_House_Section_A.width-1400.jpg)

![198 A20 280 NEW [New House Section B].jpg](https://dowjonesarchitects.lon1.digitaloceanspaces.com/media/images/198_A20_280_NEW_New_House_Section_B.width-1400.jpg)
![198 A20 300 OLD [Old House North Elevation ].jpg](https://dowjonesarchitects.lon1.digitaloceanspaces.com/media/images/198_A20_300_OLD_Old_House_North_Elevation_.width-1400.jpg)